пн-пт: 8:30-17:00
(044) 334-59-09
Зворотний дзвінок
Головна
Про корпорацію
Наші підприємства
Керівництво
Проекти
Бізнес
Тендери
Проектні послуги
Інженерно-будівельні послуги
Будівельні матеріали
Будівельна техніка та обладнання
Управління нерухомим майном
Фінансові послуги
Відеогалерея
Новини
Контакти
Проекти
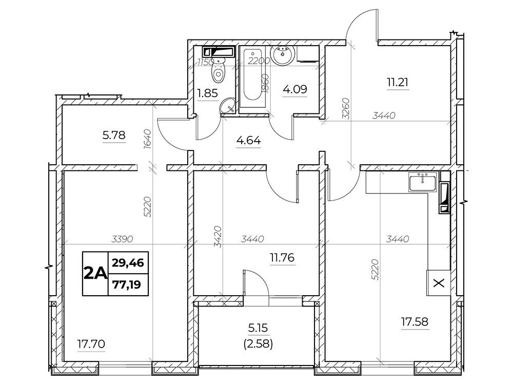
ЖК Київський
2-кімнатна квартира
Previous
Next
Загальна площа: 77,19 м2
Житлова площа: 29,46 м2
Будинок: 1;
Секція: 2;
Тип: 2А;
Поверхи: 2-24.
Зворотний дзвінок
Copyright MAXXmarketing GmbH
JoomShopping Download & Support