Будинки

Будинок № 1
Із Оздобленням
Будинок № 1
ЖК Київський
Із Оздобленням
  • м.Бровари, вул.Київська, 225
  • Будується

ЖК «Київський» – новий житловий комплекс від Корпорації «ДБК-ЖИТЛОБУД», будівництво якого розпочато у місті Бровари на перетині вулиць Київська та В’ячеслава Чорновола – одній із найзручніших локацій міста.

Комплекс складатиметься з кількох сучасних багатоповерхових будинків із продуманою інфраструктурою та облаштованою прибудинковою територією: зелені зони для відпочинку, дитячі та спортивні майданчики, простір для прогулянок і затишку всієї родини.

Будівництво виконується за сучасною технологією панельного домобудування, із вентильованим фасадом утепленого мінеральною ватою та продуманими плануваннями квартир. Просторі, світлі та функціональні квартири створені для комфортного життя й задовольнять потреби як молодих сімей, так і тих, хто цінує якість та надійність.

ЖК «Київський» – це поєднання сучасної архітектури, зручного розташування та доступного житла від надійного забудовника.

Галерея

Характеристики

Будинків 6
Кількість поверхів 24
Технологія панельна
Стіни залізобетон
Утеплення HOSTROCK
Опалення централізоване
Висота поверху 2.8 м
Паркінг гостьовий
Комфорт та технічне оснащення

У кожній секції — по три ліфти: два пасажирські вантажністю 400 кг і один вантажопасажирський на 1000 кг, який також може використовуватись для потреб пожежних підрозділів.

Висота типового поверху — 2,8 м.

Вхідні двері до квартир — металеві, протиударні, вікна — металопластикові згідно з сучасними стандартами енергоефективності.

У квартирах виконано чорнове оздоблення:

  • стелі — пофарбовані водоемульсійною фарбою;
  • стіни — поклеєні шпалерами;
  • підлога — лінолеум або цементна стяжка (залежно від приміщення);
  • у санвузлах передбачено гідроізоляцію та місця під електричні рушникосушарки.

Місця загального користування оформлені керамічною плиткою та якісним освітленням.

Інженерні системи та сантехнічне обладнання

Сучасні інженерні системи та надійне сантехнічне обладнання забезпечують комфорт, енергоефективність і безпеку проживання в кожній квартирі.

  • Опалення — водяне, двотрубне горизонтальне в квартирах та вертикальне однотрубне у місцях загального користування;
  • Водопостачання — двозонне, з окремими магістралями для кожної зони;
  • Облік ресурсів — квартирні лічильники води, електроенергії, загальнобудинковий теплолічильник;
  • Електропостачання — проводка з мідного дроту;
  • Газопостачання — не передбачене, встановлюються електроплити.

Квартири обладнуються якісною сантехнікою вітчизняного виробництва: ванною, умивальником, унітазом, а для дво- та трикімнатних — додатковим рукомийником. Передбачено місця для підключення кухонної мийки та побутової техніки.

Інфраструктура

Транспорт
Навчальні заклади
Медичні заклади
Парки
Торгові та розважальні заклади

Планування

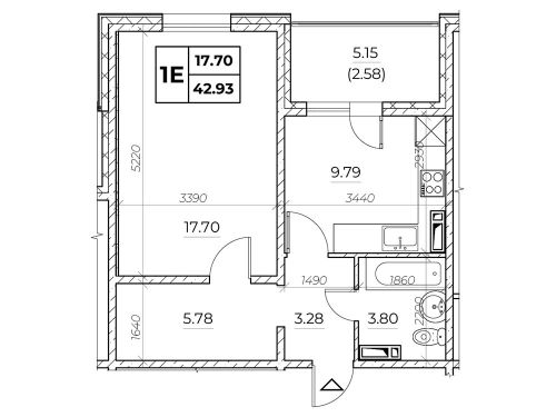
1-кімнатна квартира
1-кімнатна квартира
Загальна площа: 42,93 м2
Житлова площа: 17,70 м2
1-кімнатна квартира
1-кімнатна квартира
Загальна площа: 42,93 м2
Житлова площа: 17,70 м2
1-кімнатна квартира
1-кімнатна квартира
Загальна площа: 48,24 м2
Житлова площа: 17,96 м2
1-кімнатна квартира
1-кімнатна квартира
Загальна площа: 48,56 м2
Житлова площа: 17,96 м2
1-кімнатна квартира
1-кімнатна квартира
Загальна площа: 48,78 м2
Житлова площа: 17,96 м2
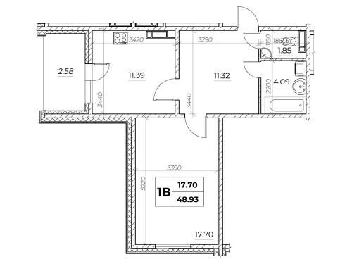
1-кімнатна квартира
1-кімнатна квартира
Загальна площа: 48,93 м2
Житлова площа: 17,70 м2
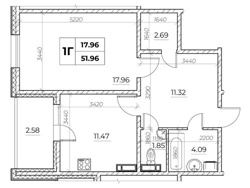
1-кімнатна квартира
1-кімнатна квартира
Загальна площа: 51,96 м2
Житлова площа: 17,96 м2
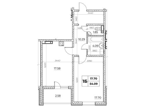
1-кімнатна квартира
1-кімнатна квартира
Загальна площа: 54,09 м2
Житлова площа: 17,70 м2
1-кімнатна квартира
1-кімнатна квартира
Загальна площа: 54,35 м2
Житлова площа: 17,96 м2
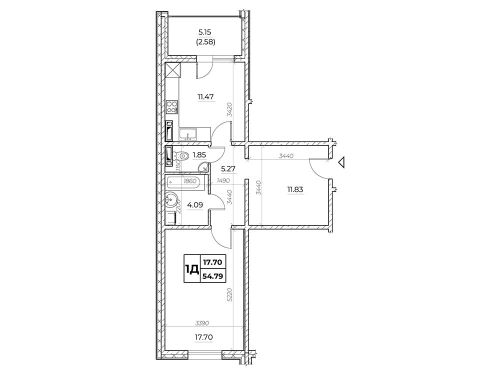
1-кімнатна квартира
1-кімнатна квартира
Загальна площа: 54,79 м2
Житлова площа: 17,70 м2
1-кімнатна квартира
1-кімнатна квартира
Загальна площа: 59,74 м2
Житлова площа: 17,70 м2
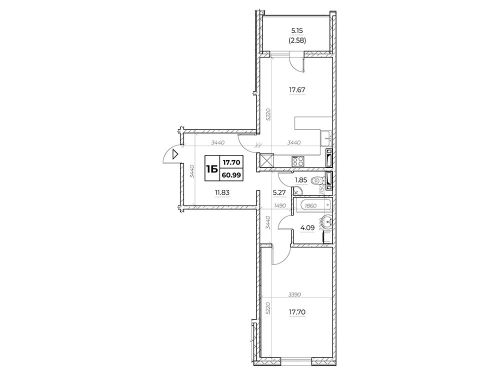
1-кімнатна квартира
1-кімнатна квартира
Загальна площа: 60,99 м2
Житлова площа: 17,70 м2
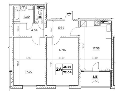
2-кімнатна квартира
2-кімнатна квартира
Загальна площа: 72,04 м2
Житлова площа: 35,66 м2
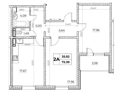
2-кімнатна квартира
2-кімнатна квартира
Загальна площа: 72,39 м2
Житлова площа: 35,92 м2
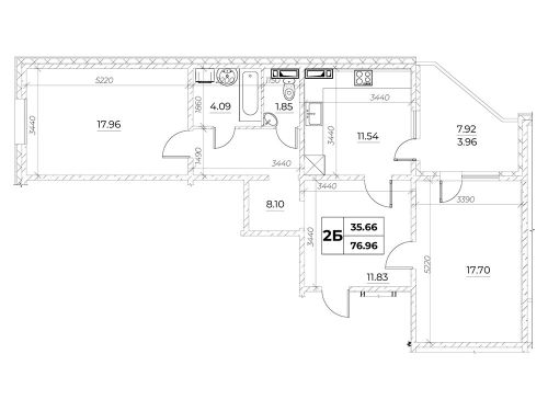
2-кімнатна квартира
2-кімнатна квартира
Загальна площа: 76,96 м2
Житлова площа: 35,66 м2
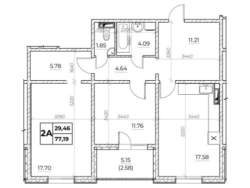
2-кімнатна квартира
2-кімнатна квартира
Загальна площа: 77,19 м2
Житлова площа: 29,46 м2
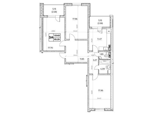
3-кімнатна квартира
3-кімнатна квартира
Загальна площа: 93,29 м2
Житлова площа: 53,62 м2
3-кімнатна квартира
3-кімнатна квартира
Загальна площа: 93,29 м2
Житлова площа: 53,62 м2
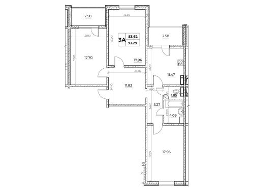
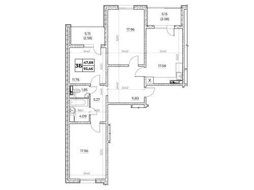
3-кімнатна квартира
3-кімнатна квартира
Загальна площа: 93,46 м2
Житлова площа: 47,68 м2
Copyright MAXXmarketing GmbH
JoomShopping Download & Support